FORT Fencing
Agricultural & Equine Fencing


Product Ref: LIPL0110096
Local Delivery
Yes we can deliver to your address
Sorry, we cannot deliver to your location at the moment
Delivery address not within our radius? Contact our friendly sales team now!
Click & Collect
In Stock
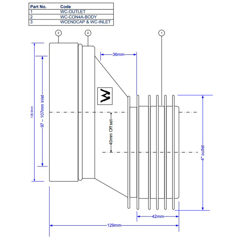
Available with finned outlet for 4"/110mm PVC-U and cast iron soil pipe diameters (internal), and with plain end outlet to fit 110mm soil or underground pipe fittings. 97-107mm Inlet suits all pan spigots. Adjustable Length.